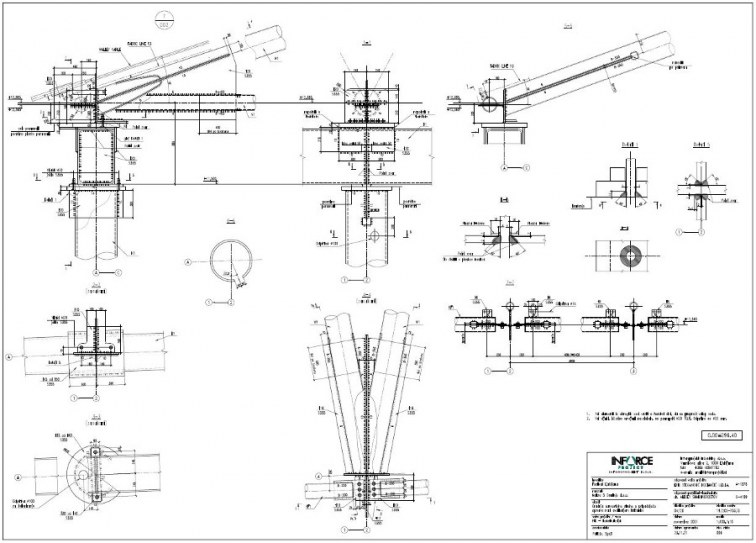
Roof Križanke, Ljubljana
11.2020 – 08.2021
PROJECT DATA
| Investor: | Festival Ljubljana |
| Location: | Ljubljana |
| Architect: | Architecta |
| Contractor: | Makro 5 |
| Project type: | Reconstruction |
| Floor dimension: | 50,7m x 35,6m |
| Project time: | 11.2020 – 08.2021 |
| Construction completion: | 2021 |
SERVICES PROVIDED
STRUCTURAL ENGINEERING, DESIGN PHASES:
Design Development
Construction Documents
Construction Supervision












